土地活用や不動産資産運用、リノベーション、賃貸管理・仲介などをサポートするハタス(株)

お問い合わせ 入居者様向けサイト

Cube Noir

プチ ビューロ

Petit Bureau

小さな土地に大きな価値。空き家や狭小地を収益に変える新発想のコンパクトオフィス

Strengths

土地所有者には安定した資産活用を、利用者には低コストで始められる快適な事務所環境を。
双方に価値を生み出す次世代のオフィスモデル

地域に眠る未利用地を新たな経済活動の拠点へと変えるPetit Bureau。戸建てよりも効率的に複数棟を配置でき、デザイン事務所やIT企業、士業オフィス、サロンなど多様な業種に対応可能。街並みに調和する落ち着いたデザインで、事務所としての機能性と心地よさを両立しています。
小規模な投資で継続的な収益を生み出し、所有者と利用者の双方にメリットを提供する、新時代の土地活用モデルです。

comparison
comparison comparison

floor plan

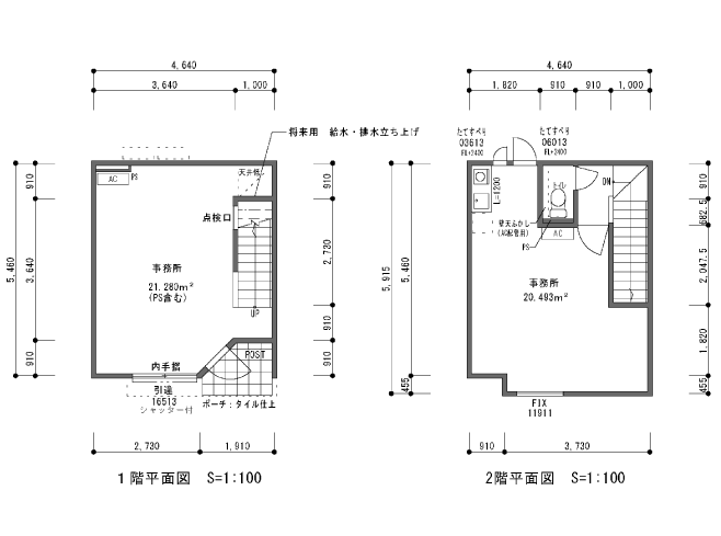
平面図

1.2階とも内装や設備は全て仕上がった状態が標準仕様のため、入居者様は入居初日から事業をスタートすることが可能です。
1区画の専有面積が1.2階合わせて15.44坪とコンパクトなため、有効活用しにくい狭小地への事業系賃貸物件の計画が可能となります。スタートアップ企業の立ち上げにも魅力的なサイズです。

平面図

voice

お客様の声

イメージ

以前は自宅の一角で仕事をしていましたが、来客対応や打ち合わせには不便でした。PetitBureauは落ち着いた雰囲気の外観でお客様にも好印象。
必要なスペースが揃っていながら開業費用を抑えられ、とても助かっています。

イメージ

自宅開業ではお客様を迎える環境に限界を感じていましたが、PetitBureauは外観も内装も清潔感があり安心してご案内できます。
初期費用を抑えながら理想のサロンを実現でき、予約数も着実に増えています。地域に根ざしたお店づくりに最適です。

LINE UP

TOP